黄山时光里规划方案调整
扫描到手机,新闻随时看
扫一扫,用手机看文章
更加方便分享给朋友
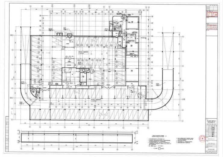
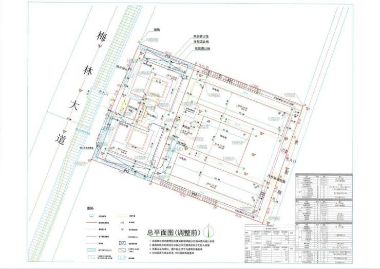
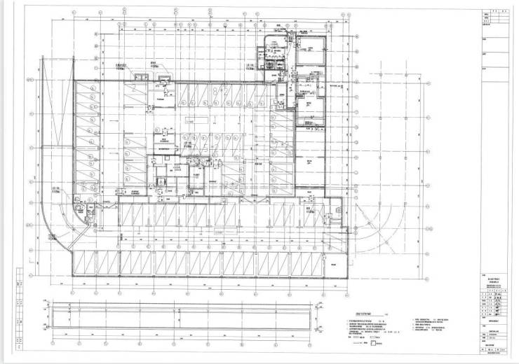
目位于梅林大道东侧,景观路西侧,建设单位为安徽匠传食品科技有限公司,项目宗地分A-1-1和A-1-2两个区块,规划设计方案于2020年11月批复,其中A-1-1区块为商服用地,规划建设两栋9层办公楼及地下室,配建200个机动车停车位(地上50个、地下150个);A-1-2区块为工业用地,规划三栋2-3层工业厂房。建设单位考虑实际需求申请对项目商服区块和工业区块进行分宗,需对原方案进行调整,具体为:1、取消商业区块一处地下室出入口,同时对地下及地面停车方案调整,调整后商业区块总机动车停车位200个(地上101个、地下99个);2、对工业区块总平布局方案调整。根据有关规定,现将调整前后总平面图及地下室平面图予以公示,如有意见和建议,请在公示期间向我局反馈。
公示时间:七个工作日(2022年1月11日至19日)
联系人:周女士
联系电话:0559-2330676
公示方式:
一、公示网址:黄山市自然资源和规划局
二、现场公示:项目地块现场
三、固定场所公示:黄山市自然资源和规划局一楼公示栏
黄山市自然资源和规划局
二〇二三年一月十一日
声明:本文由入驻焦点开放平台的作者撰写,除焦点官方账号外,观点仅代表作者本人,不代表焦点立场。



