横江湾凯悦嘉轩酒店规划方案调整,将升级为五星级凯悦酒店!
扫描到手机,新闻随时看
扫一扫,用手机看文章
更加方便分享给朋友
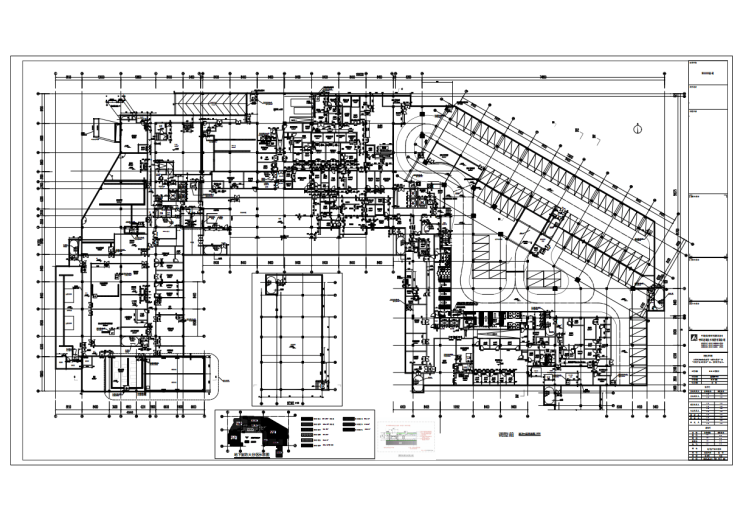
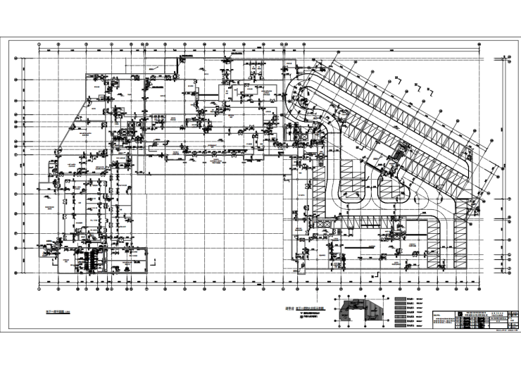
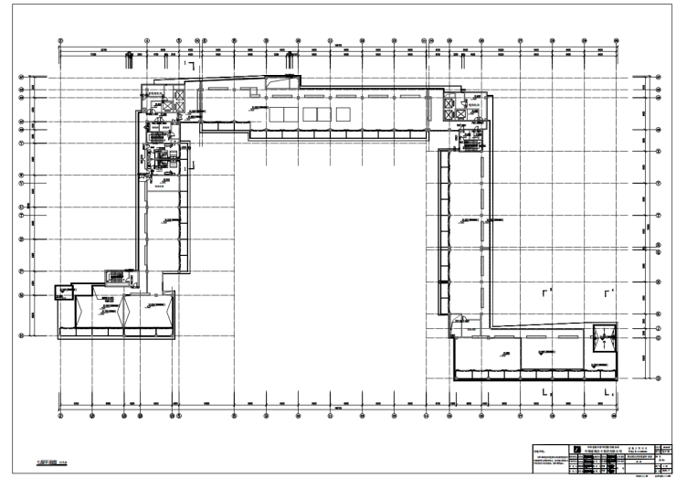
摘要:原规划方案于2020年9月批复,规划为四星级凯悦嘉轩酒店,现建设单位黄山仁润置业有限公司考虑酒店升级为五星级凯悦酒店,申请对原方案调整,建筑主体由6层调整为7层,调整后总建筑面积约36849平方米,其中地上建筑面积约24378平方米(计容),地下建筑面积约12471平方米(不计容),容积率0.85;机动车位122个(地上6个、地下116个)。







项目地块位于齐云大道与横江一路交口东南侧,分东、西两个地块,为商服用地,建设单位为黄山仁润置业有限公司。项目规划方案于2020年9月批复,其中西侧地块用地面积28910平方米,规划建设主体为6层(局部7层)酒店,为四星级凯悦嘉轩酒店,规划方案总建筑面积31271平方米,其中地上建筑面积20235平方米(计容),地下建筑面积11036平方米(不计容),容积率0.7;机动车位112个(地上6个、地下106个)。现建设单位考虑酒店升级为五星级凯悦酒店,申请对原方案调整,建筑主体由6层调整为7层,调整后总建筑面积约36849平方米,其中地上建筑面积约24378平方米(计容),地下建筑面积约12471平方米(不计容),容积率0.85;机动车位122个(地上6个、地下116个)。根据有关规定,现将调整前后图纸(总平面图、地下室平面图及七层平面图)予以公示,如有意见和建议,请在公示期内向我局反馈。
公示时间:七个工作日(2022年12月28日至2023年1月6日)
联系人:周女士 联系电话:0559-2330676
公示方式:
一、公示网址:黄山市自然资源和规划局
二、现场公示:项目地块现场
三、固定场所公示:黄山市自然资源和规划局一楼公示栏
黄山市自然资源和规划局
二〇二二年十二月二十八日
声明:本文由入驻焦点开放平台的作者撰写,除焦点官方账号外,观点仅代表作者本人,不代表焦点立场。



