永佳新城壹号二期为满足二次供水需求,地下室局部调整
焦点黄山 2020-06-22 17:37:23
用手机看
扫描到手机,新闻随时看
扫一扫,用手机看文章
更加方便分享给朋友
永佳新城壹号二期项目位于高新区歙州路与梅林大道交叉口,地块规划方案我局于2019年4月批复,为满足二次供水需求,建设单位申请将8#地下室四间储藏间调整为水泵房(图示斜线阴影区域)。
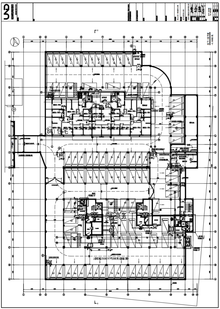
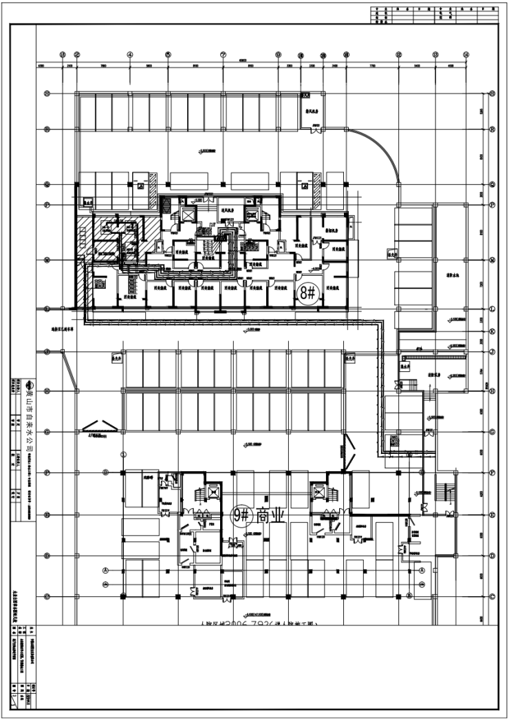
永佳新城壹号二期项目位于高新区歙州路与梅林大道交叉口,地块规划方案我局于2019年4月批复,为满足二次供水需求,建设单位申请将8#地下室四间储藏间调整为水泵房(图示斜线阴影区域),根据有关规定,现将调整前后地下平面图予以公示,如有意见和建议,请在公示期内向我局反馈。

(调整前)

(调整后)
公示时间:七个工作日(2020年6月22日至7月1日)
联系人:周女士
联系电话:0559-2330676
公示方式:
一、公示网址:黄山市自然资源和规划局
二、现场公示:项目地块现场
三、固定场所公示:黄山市自然资源和规划局一楼公示栏
黄山市自然资源和规划局
二〇二〇年六月二十二日
声明:本文由入驻焦点开放平台的作者撰写,除焦点官方账号外,观点仅代表作者本人,不代表焦点立场。



